Mia Faccia, a day spa and salon, and Geneva Java, a coffee shop, are moving from downtown Lake Geneva to the Geneva National Business Center, located just outside the Geneva National gated community on State Highway 50. (Photo by Travis Northern/Regional News)
tnorthern
Lowell Custom Homes has constructed the walls for the first new building of the Geneva National Business Center, and construction is expected to complete by spring. (Photo by Travis Northern/Regional News)
tnorthern
In this photo from Autumn last year, workers from Lowell Custom Homes are working on the first of eight new buildings to be built in the Geneva National Business Center, in the town of Geneva on State Highway 50. (Contributed photo/Regional News)
TOWN OF GENEVA — Construction is underway on the first of eight new buildings planned in the Geneva National Business Center, about four miles west of Lake Geneva on State Highway 50.
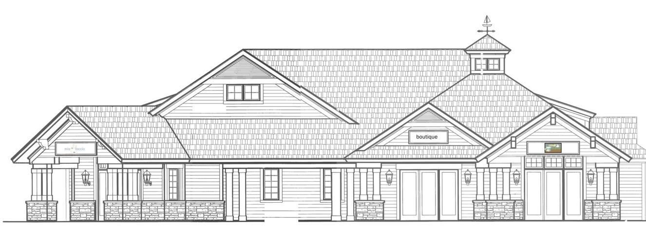
As shown in this elevation drawing, the new locations for local businesses Mia Faccia and Geneva Java will occupy the first of eight new buildings coming to the Geneva National Business Center. (Contributed photo/Regional News)
Mia Faccia, a day spa and salon, and Geneva Java, a coffee shop, are moving from downtown Lake Geneva to the Geneva National Business Center, located just outside the Geneva National gated community on State Highway 50. (Photo by Travis Northern/Regional News)
Lowell Custom Homes has constructed the walls for the first new building of the Geneva National Business Center, and construction is expected to complete by spring. (Photo by Travis Northern/Regional News)
In this photo from Autumn last year, workers from Lowell Custom Homes are working on the first of eight new buildings to be built in the Geneva National Business Center, in the town of Geneva on State Highway 50. (Contributed photo/Regional News)
As shown in this elevation drawing, the new locations for local businesses Mia Faccia and Geneva Java will occupy the first of eight new buildings coming to the Geneva National Business Center. (Contributed photo/Regional News)